Overview

Godrej Majesty At SECTOR 12, GREATER NOIDA

Godrej Properties plans to woo home-buyers and investors alike with its quality residential project located at a strategic location at Sector 146 in Noida. They have announced that they have purchased two land parcels in Sector 12, Greater Noida West , for a residential township. Not only does Godrej Majesty Noida project provide space-efficient plans but it also has green landscapes. The overall experience would be complete serenity

Several location advantages are offered by this upcoming project of Godrej Properties. These are as well connected to Noida Expressway, close to Sector 146 metro station, and well connected to other sector roads in the vicinity, excellent road connectivity is assured. This project is easy to access at the Jewar International Airport.

Overview Image Overview Image
Our Price

Dream home a door away.

3 BHK

2.43 Cr*

Size

1800 Sq.Ft.

3 BHK + Servant

3.10 Cr*

Size

2300 Sq.ft.

4 BHK + Servant

3.78 Cr*

Size

2800 Sq.ft.

Our Highlights

Highlights

  • 01 G+27 Iconic Towers | Only 4 Homes per Floor
  • 02 11 Ft. Grand Ceiling Height
  • 03 FREE Modular Kitchen + Italian Marble Flooring
  • 04 Premium Split ACs in All Rooms
highlights_img

Highlights

  • 05 Complimentary Parking + Club Membership
  • 06 50,000 Sq.Ft. Ultra-Luxurious Clubhouse
  • 07 Ultra-Luxury Clubhouse & Sports Arena
  • 08 Smart Home Features & 24x7 Security
Amenities Image Amenities Image
Our Amenities

Godrej Majesty Iconic Living.

Layout Amenity Icon

Yoga

Layout Amenity Icon

Basketball Court

Layout Amenity Icon

Gym

Layout Amenity Icon

Kid's Play Area

Layout Amenity Icon

Swimming Pool

Layout Amenity Icon

Badminton Court

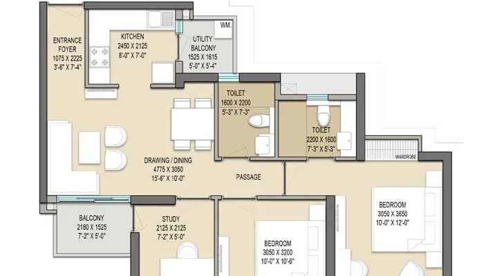
Master & Floors Plans

Good Design for Good Moments.

Layout Floor plan

3 BHK

Layout Floor plan

3 BHK + Servant

Layout Floor plan

4 BHK + Servant

virtual_tour
Site Tour

Virtual Site Tour

Godrej Majesty spans across expansive acres of lush greenery, offering an idyllic setting for those looking to create their dream home in a peaceful environment.

Location Advantage

The Comfort of a great location.

  • 10 mins to Gaur City Mall
  • 5 mins from Top Schools
  • 45 mins to IGI Airport
  • 55 mins to Noida International Airport
  • Near Top Schools: GD Goenka, St. Teresa
  • Close to Yatharth Hospital & Yotta Data Centre
  • 25 mins from Buddha International Circuit
  • Excellent connectivity to Delhi NCR & Expressways
  • 01 10 mins to Gaur City Mall
  • 02 5 mins from Top Schools
  • 03 45 mins to IGI Airport
  • 04 55 mins to Noida International Airport
  • 05 Near Top Schools: GD Goenka, St. Teresa
  • 06 Close to Yatharth Hospital & Yotta Data Centre
  • 07 25 mins from Buddha International Circuit
  • 08 Excellent connectivity to Delhi NCR & Expressways
Layout Location Map Layout Location Map
Contact Us

I authorize company representatives to Call, SMS, Email or WhatsApp me about its products and offers. This consent overrides any registration for DNC/NDNC.

About Builder

Godrej Properties brings the Godrej Group philosophy of innovation, sustainability and excellence to the real estate industry. Each Godrej Properties development combines a 120–year legacy of excellence and trust with a commitment to cutting-edge design and technology.

icon Enquire Now icon Whats App icon Tap To Call